
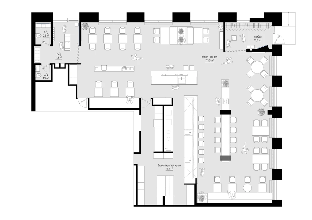
Большое пространство площадью 214 кв. метров с панорамными окнами стало идеальной основой для ресторанного проекта Nichi (в переводе с японского «Солнце»). Алина Мусина и Полина Тулушева, дизайнеры Бюро 48, создали интерьер вне времени с деликатными отсылками к Японии. «Мы объединили современную архитектуру и японские традиции в сдержанном минималистичном исполнении. У нас получился лаконичный интерьер, наполненный тактильными контрастами и смысловыми акцентами», — говорят авторы проекта.
По теме: Ваби-саби по-русски: 5 кафе и ресторанов японской кухни с эффектными интерьерами

«Перед нами стояла задача создать интерьер современного японского ресторана, который выглядел бы минималистично, но при этом гостеприимно. Нам хотелось, чтобы интерьер был светлым в дневное время и обволакивающим и располагающим к отдыху в вечернее, а его атмосфера призывала бы к замедлению и спокойствию», — рассказывают дизайнеры.


Авторы проекта визуально разделили пространство на обеденную зону и зону открытой кухни. «Мы хотели, чтобы посетитель мог видеть, как происходит приготовление блюд, а также за длинной барной столешницей проводить дегустационные ужины и наслаждаться блюдами из рук самого шеф-повара», — говорят дизайнеры. Вся мебель и декор в проекте выполнены на заказ по эскизам дизайнеров. Стены покрыты объемной декоративной штукатуркой, которая отсылает к фактуре песка, без которого не обходится ни один японский сад камней.

«Серый — основной цвет интерьера. Он создает обволакивающее единое пространство и становится нейтральным фоном, который подчеркивает теплые древесные фактуры. Натуральный материал дерева мы разбавили точечными вкраплениями нержавеющей стали и сдержанной фактурой камня, которые деликатно вписаны в серую палитру. Акцентом выступает красный цвет. Его глубокий насыщенный оттенок — это осмысленный контраст, который придает интерьеру энергии и выразительности».


«Пространство получилось максимально лаконичное: природные оттенки, натуральные материалы, панорамные окна, много свободного пространства и воздуха. А точечный изящный декор на стенах и мягкое приглушенное освещение создали ощущение тепла и спокойной элегантности», — завершают дизайнеры Бюро 48.






