Яркая студия в Брно по проекту ANCconcept: квартира как альтернатива гостинице
9 октября 2025 г.

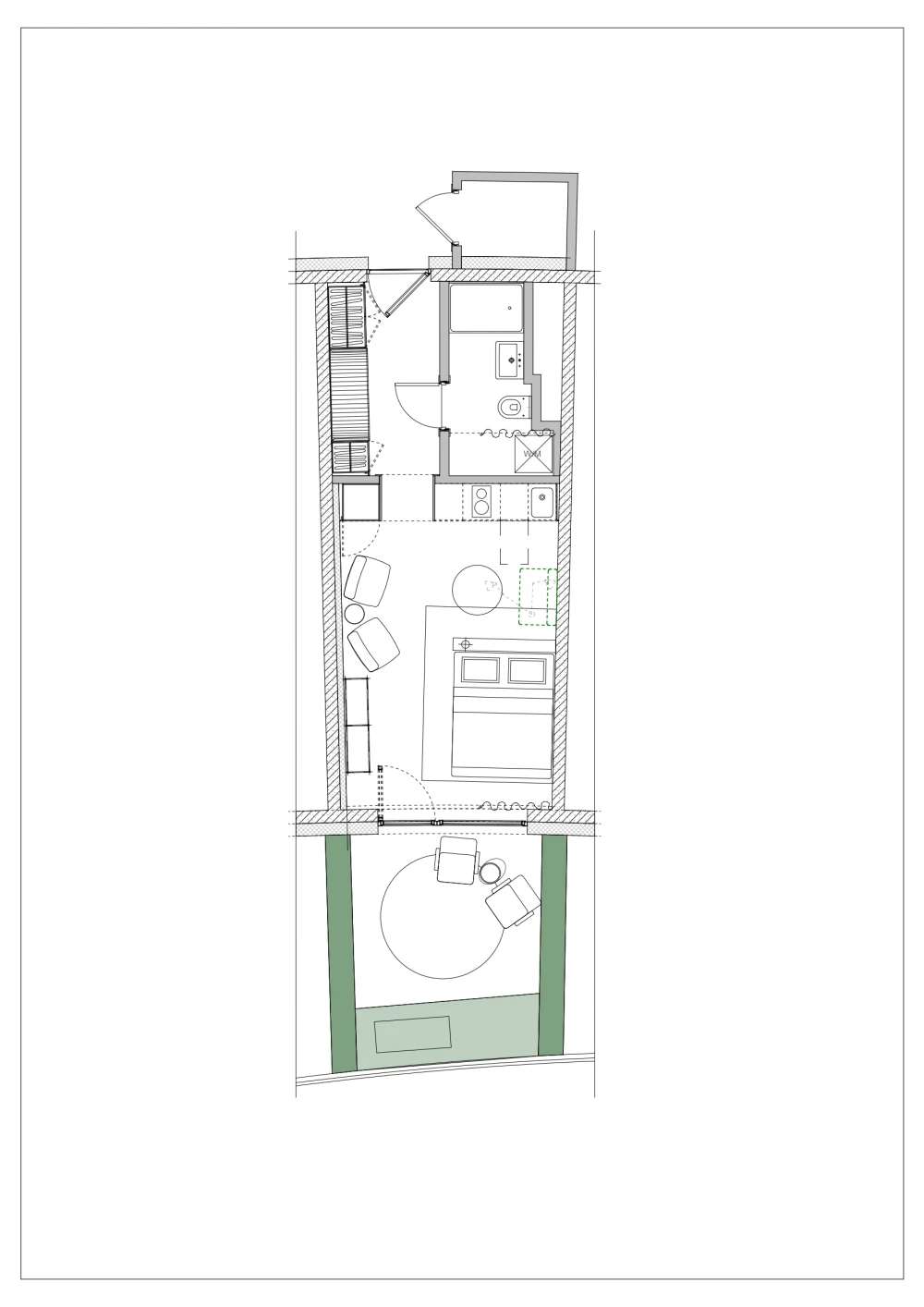
Эта компактная студия площадью 30 кв. метров в Брно — творческий эксперимент архитекторов Петра Лукьянова и Кирилла Устинова из студии ANCconcept. Квартира расположена в закрытом мраморном карьере, в уникальном террасированном доме, первые этажи которого выходят на приватные дворы без заборов. Проект создавался для молодой пары из Праги в качестве альтернативы гостиничному номеру — как место для коротких визитов длиной в 3-4 дня.
По теме: Семейная квартира с плиткой в гостиной: проект студии ANCconcept

«Главным преимуществом объекта стало панорамное окно с выходом на приватную террасу и в зеленый двор, — рассказывают дизайнеры. — Пространство представляло собой типичный для Европы чистый объем с готовой отделкой санузла и разводкой электрики, но без светильников и мебели. Отсутствие кухонного гарнитура мы восприняли как плюс: это дало возможность спроектировать его с нуля под задачи комфортного пребывания. Поскольку серьезные строительные работы были исключены, мы сосредоточились на мебельном наполнении в эстетике Баухауса и конструктивизма».

«Центральным элементом интерьера стал многофункциональный подиум из фанеры. Он выполняет сразу несколько ролей: зонирует пространство, служит кроватью, системой хранения и дополнительными посадочными местами. Широкий борт вдоль матраса решает важную задачу — гости не сидят на спальном месте, а изголовье работает как перегородка между спальней и столовой».


«Практически вся мебель была изготовлена на заказ по нашему проекту. Белая отделка от застройщика стала идеальным фоном для ярких акцентов, которые любит заказчица. В прихожей мы спроектировали шкаф со встроенной банкеткой, который также служит уютным уголком для чтения. Его дополнили декоративными крючками в виде голубей. Кухня полностью встроена в стену, а холодильник пришлось разместить отдельно от основного фронта — этому помешал неизменный проем в прихожую. Еще один интересный предмет — трансформируемый пуф в столовой зоне: его можно полностью надвинуть на подиум или отодвинуть, регулируя количество посадочных мест».

«Самым сложным оказалось найти в Чехии производителя столярки, готового работать по архитектурным чертежам. Ответы на письма мы ждали месяцами, цены часто выдумывались на ходу. В итоге качество исполнения оказалось не московским, но вполне достойным. Удивительно, но весь проект мы вели дистанционно и впервые увидели результат только на съемках».




















