
Проект финской студии JKMM Architects был объявлен победителем конкурса на создание Музея архитектуры и дизайна в Хельсинки (Museum of Architecture and Design). Здание с наклонными фасадами из переработанного кирпича построят на пустующем участке Южной гавани, ранее предназначенном для Музея Гуггенхайма.
По теме: Новый Музей архитектуры и дизайна построят в Финляндии
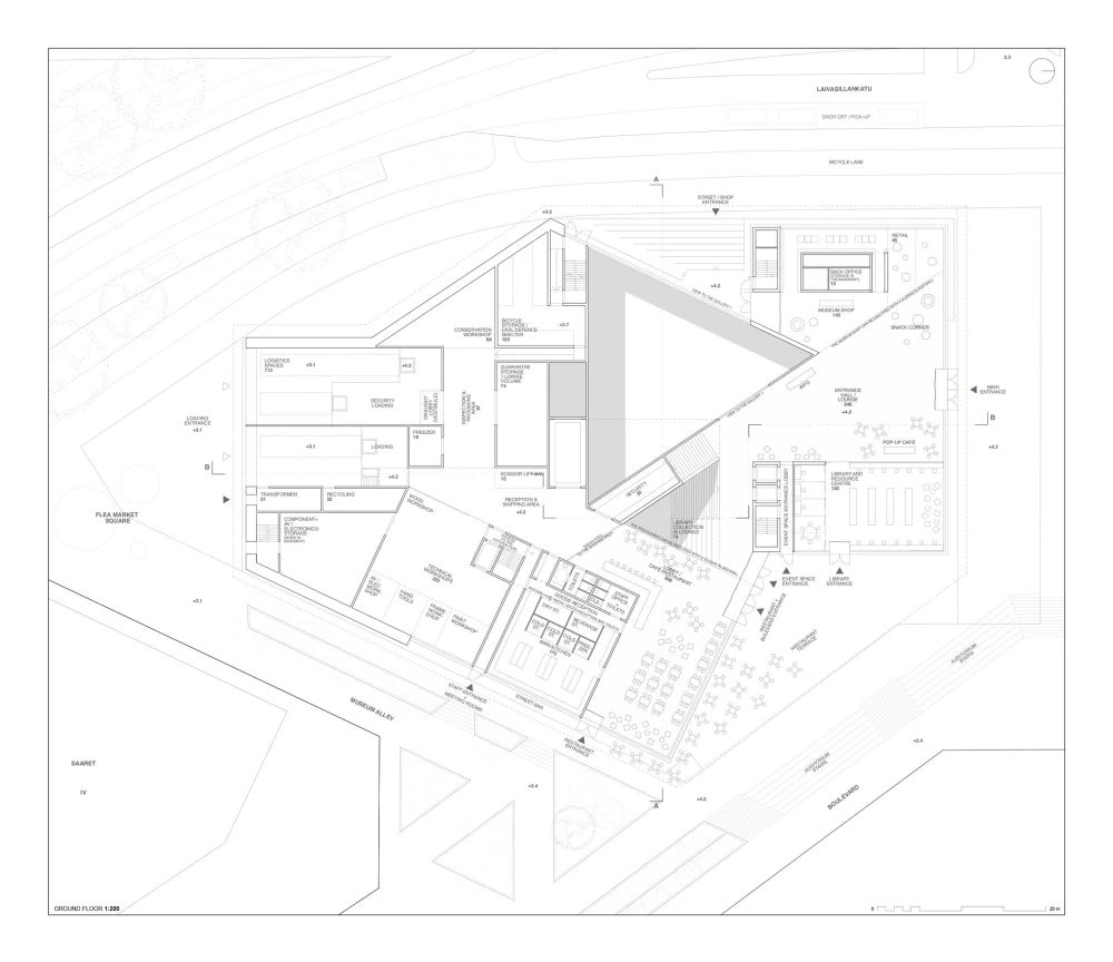
В экспозиции музея будет представлена коллекция предметов архитектуры и дизайна Финляндии из более 900 000 экспонатов, в частности работы архитекторов Айно и Алвара Аалто, Ээро Аарнио, Элиэля и Ээро Сааринена, а также брендов, Marimekko и Nokia. Помимо демонстрации объектов, моделей и фотографий, музей предложит образовательную платформу.


Строение площадью 10 050 кв. метров призвано стать современной культурной достопримечательностью, дружественной посетителям, и гармонично дополнить городской ландшафт. На визуализациях показана геометричная постройка, расположенная вокруг центрального атриума, с треугольными окнами, пронизывающими наклонные фасады из переработанного кирпича. Помимо выставочного пространства, в Музее архитектуры и дизайна Хельсинки расположатся библиотека и открытая терраса на верхнем уровне. Отдельное внимание архитекторы уделили устойчивости, сведя к минимуму углеродный след проекта. Ожидается, что строительство начнется в 2027-м, открытие запланировано на 2030 год.





