Маленькая квартира в аренду в тонах шалфея и терракоты: проект Анны Cиницы
9 февраля 2026 г.

Этот интерьер архитектор Анна Синица спроектировала для сдачи в аренду, ориентируясь на потребности будущих жильцов. «Владельцы — люди с хорошим вкусом и пониманием роли дизайна, — говорит Анна. — На первой встрече они обозначили пожелание создать заметный и необычный проект, сохранив при этом удобство и функциональность для арендаторов, поэтому особое внимание я уделила планировке и деталям, повышающим привлекательность объекта».
По теме: Лаконичная квартира для IT-специалиста: проект Royal Fusion
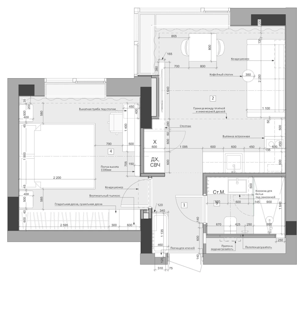
Квартира находится в современном жилом комплексе на юго-западе Москвы. Площадь пространства — 39,5 кв. метров. «Дом построен по проекту архитектурного бюро ATRIUM. Достоинства самой квартиры — это панорамные окна и вид на набережную. Недостаток — небольшая площадь кухни-гостиной, над которой пришлось хорошо поработать, чтобы разместить все функционально».


«Основной идеей проекта было подчеркнуть прекрасные виды из окон на долину руки. Вокруг этой концепции сформировалось планировочное и стилистическое решение проекта. Мы организовали пространство так, что уже при входе в квартиру из прихожей открывается вид на набережную и зеленую зону. Планировка и в целом была выстроена так, чтобы ключевые зоны — гостиная и обеденная — были ориентированы на пейзаж».


«В отделке использованы инженерная доска, износостойкая краска и декоративная штукатурка. В санузле на полу мы уложили испанскую плитку с акцентным рисунком, а также плитку с текстурой серого камня и мрамора. Особенно удачным решением стала плитка «кабанчик» на фартуке кухни насыщенного синего оттенка с переливающейся, неравномерной текстурой».


«Основой палитры стал мягкий шалфейный оттенок, связывающий интерьер с природным окружением за окнами. Для динамики я добавила к нему коралловые акценты и глубокий синий. В спальне же стена за кроватью отделана декоративной штукатуркой насыщенного кирпичного цвета в сочетании с графичным черным для придания интерьеру выразительности».






