Светлая квартира с нестандартной планировкой: проект Наталии Редькиной и Марии Николаевой в ЖК «ЗИЛАРТ»
21 января 2026 г.

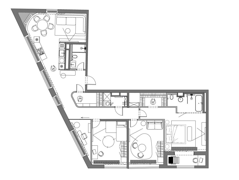
Дизайнеры Наталия Редькина и Мария Николаева, бюро PARAMETERS, оформила на последнем этаже московского ЖК «ЗИЛАРТ» квартиру со сложной планировкой. Исходное пространство площадью 131 кв. метр имело ряд недостатков — острый угол в конфигурации гостиной, вытянутый коридор, небольшая площадь кухни, — которые были радикально переосмыслены и стали изюминкой всего интерьера. Одновременно перед автором проекта стояла сложная и интересная задача: воплотить пожелание заказчиков о светлом, практически белом пространстве и наполнить его мягкими текстурами, чтобы квартира казалась более уютной.
По теме: Квартира с камином и яркими акцентами: проект архитектора Тэи Толордава в Москве

«Поскольку это уже наш третий совместный проект с этими заказчиками — семьей с двумя детьми, нам были хорошо знакомы их потребности: личное рабочее пространство для каждого домочадца, просторная прихожая, изолированный мастер-блок и кухонный остров, — рассказывают дизайнеры. — На начало строительства в семье подрастали два сына-школьника, для которых уже были спроектированы отдельные детские. Однако жизнь внесла свои коррективы: у заказчиков родились двойняшки. Поэтому в первой комнате мы установили двухъярусную кровать, что позволило комфортно разместить старших детей и освободить пространство для новорожденных».

«Благодаря перепланировке мы смогли создать воздушную прихожую с большим окном напротив входной двери, а функциональную гардеробную вынесли в отдельную комнату. В столовой зоне предусмотрели радиусную нишу с биокамином — один из самых трудных с технической точки зрения узлов в проекте. Отделка верхней части ниши благородным металлом добавила теплоты монохромному интерьеру. Чтобы заказчица могла наслаждаться городскими видами, мы расположили кухонный остров ломаной формы напротив панорамного окна. Гостиная получилась хоть и небольшой, но достаточно приватной».

«В квартире организован мастер-блок отельного типа: спальню и санузел разделяет стеклянная перегородка, которая позволяет впустить в ванную комнату естественный свет. Вместе с тем нам удалось разместить комфортную гардеробную, рабочее место для главы семьи на балконе. Наша заказчица — профессиональный визажист. Нестандартная форма квартиры неожиданно помогла найти идеальное место и для ее деятельности — изолированную угловую комнату с панорамным окном. В небольшом пространстве мы расположили закрытый стеллаж для хранения туалетных принадлежностей».

«Помещения как бы перетекают друг в друга: шпонированные панели визуально объединяют пространство прихожей, кухни и гостиной. Чтобы интерьер выглядел более легким и воздушным, мы использовали большое количество зеркал. В отделке стен отдали предпочтение тактильной декоративной штукатурке. На полу практически везде уложена инженерная доска, раскладка которой придала динамику вытянутым зонам. Особенно любимое сочетание фактур получилось в мастер-спальне: мягкие стеновые панели за кроватью, сливочные оттенки столярных изделий, фактурная ткань изголовья — все это создало обволакивающее пространство».

«Палитра построена на белых и серых оттенках. Чтобы глазу было нескучно, мы добавили контрасты: порталы из темного шпона, массивный обеденный стол и графичные светильники. Единственным цветовым акцентом стал приглушенный синий в детской. Из-за сложной планировки большая часть мебели была изготовлена на заказ по нашим эскизам. Самой трудоемкой в реализации стала двухъярусная детская кровать, так как пришлось искать наиболее удачные узлы примыкания к шкафу, стенам, конфигурацию лестницы».

«Чтобы скрыть лючки доступа к счетчикам воды после перепланировки, мы использовали в гостевом санузле фрагментарную раскладку плитки, а в основной ванной — распашное зеркало. В коридоре от застройщика была предусмотрена небольшая ниша, которую мы отвели под робот-пылесос, подключенный к воде».

















