
Дизайнер Марина Орехова, студия Arch Unique, оформила пространство ресторана Lume на острове Пухект, Таиланд. Заведение расположено в многофункциональном комплексе Royal Phuket Marina с жилыми апартаментами, частными виллами и мариной — из окон открывается панорамный вид на гавань и яхты, что стало важным элементом концепции и визуального решения проекта.
По теме: Ресторан с европейской эстетикой, местными материалами и русской сыроварней на Бали: проект SEEU collective
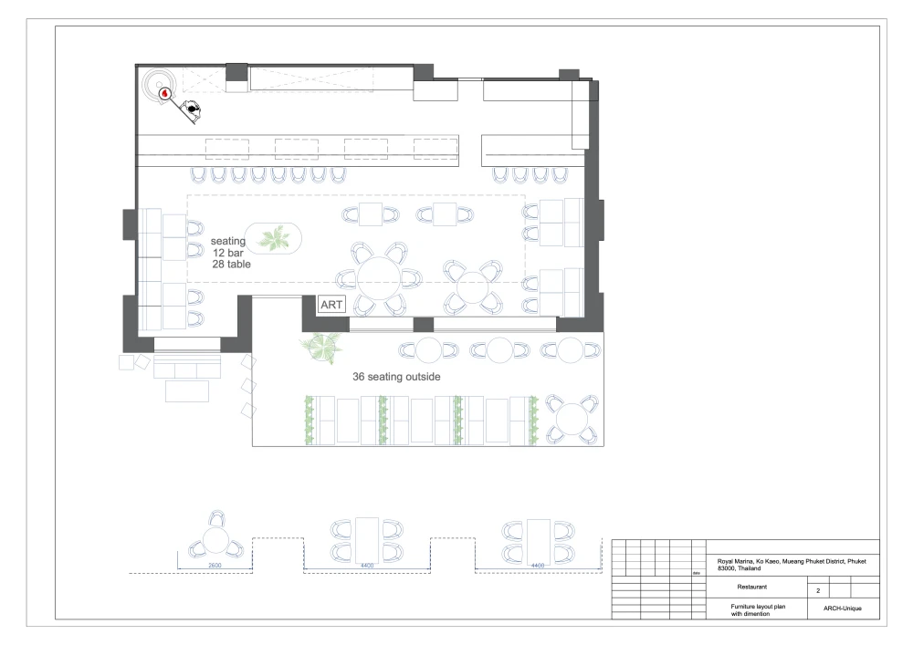
Особенность помещения площадью 300 кв. метров заключалась в его вытянутой форме и уже существующих инженерных коммуникациях. Также важно было учитывать, что при интенсивном естественном свете темный интерьер создал бы визуальный диссонанс с видом, поэтому в проекте было решено работать со светлыми теплыми оттенками и мягкими фактурами.


Перед дизайнером стояла задача создать точку притяжения для туристов, поскольку комплекс расположен в 40 минутах от основных жилых зон Пхукета — интерьер и атмосфера ресторана должны были стать главным поводом для визита. В пространстве сформировали основные функциональные зоны: зал с различными типами посадок, барную зону, открытую кухню с витриной подачи блюд, а также санитарный блок и технические помещения.


Автор проекта стремилась не перегрузить интерьер, но дать возможность взгляду отдыхать и позволить пейзажу стать частью атмосферы. Особое внимание уделено зеркальным поверхностям, которые визуально расширяют пространство и создают эффект присутствия — гости видят себя и отражения интерьера, что усиливает ощущение спокойствия. Стены покрыты бархатистой декоративной штукатуркой цвета теплого песка, добавляющего пространству мягкости.


«Мы гордимся тем, что Lume стал местом с особой атмосферой — сюда приходят, чтобы насладиться видом, эстетикой и настроением. О нем очень быстро стали говорить, и это невероятно приятно. Нам удалось сохранить баланс между уютом, функциональностью и легкостью, подчеркнув красоту марины», — рассказывает дизайнер Марина Орехова.


Вся мебель в проекте изготовлена на Бали местными мебельными брендами, в частности Lio, и мастерами. Часть предметов выполнена по эскизам Arch Unique: диваны в яхтовом стиле, а также тумба, совмещающая функции welcome-table и станции официантов, с ручками в виде морских ракушек. «Также мы не побоялись применить простой прием — нанизать кристаллы на рыболовную сетку и развесить их по потолку. Вокруг этой идеи крутился весь интерьер, она задала легкое и мерцающее настроение. Также при входе реализовали зеркальные арт-инсталляции — в контексте такого пейзажа они зазвучали особенно точно и атмосферно».




