
Может ли интерьер рассказать о личности владельца? Дизайнер Мария Береговая уверена, что да. Квартиру площадью 42 кв. метра она спроектировала для девушки с сильным характером и постаралась отразить это в пространстве.
По теме: Квартира для девушки с отсылками к стилю Мемфис: проект 3A Design Studio
«Заказчица — спортсменка и владелица барбершопа, в которой сочетаются яркость, уверенность и внутренняя сила, — говорит дизайнер. — Пространство отражает ее натуру: решительную, но женственную, энергичную, но гармоничную».
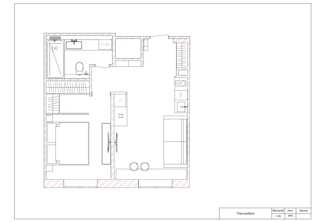
Квартира, которая находится в московском ЖК «Метрополия» в корпусе «Вена», представляла собой «чистый холст» — сдавалась в отделке white box, с довольно неплохой планировкой от застройщика, но недостаточным количеством розеток и электрических выводов. «Планировку мы не меняли, а лишь адаптировали с помощью декораторских приемов, — рассказывает Мария. — Прихожая плавно перетекает в кухню, затем в гостиную, далее в спальню, оформленную лишь порталом без двери, есть большая ванная комната».

Несмотря на небольшую площадь квартиры, дизайнер и заказчица не побоялись использовать темные цвета: их уравновесили хромированными элементами и мягкими бежевыми оттенками в текстиле. «Главное, что удалось создать пространство, где темное дерево сочетается с металлом, но за счет текстиля и бежевой базы интерьер выглядит уютным, — отмечает Мария. — Также в этом проекте мы миксовали дорогие материалы с самыми простыми, чтобы остаться в рамках запланированного бюджета».

Выбранные решения отвечали главной задаче — создать пространство с «отельным» настроением, но при этом комфортное для жизни. В основе концепции лежат идеи контраста и баланса. «Асимметричный паркет — символ движения и независимости, темное дерево и хром подчеркивают силу и динамику, а мягкие бежевые тона и текстиль наполняют интерьер теплом и светом», — комментирует автор проекта.




Большая часть мебели была выполнена на заказ, чтобы использовать каждый сантиметр площади на все 100%. Дизайнер особенно отмечает длинную — более 2,5 метров — барную стойку у окна лишь с двумя опорами по бокам. Эта сложная конструкция с расширением и вставкой из керамогранита была изготовлена по эскизам Марии. Внимание привлекает и кухня с фартуком и столешницей из нержавеющей стали, а также стеллаж со стальными вставками. «Предусмотрен и удобный барный шкафчик для вина и кофемашины, а справа за дверцей прячется холодильник, — комментирует дизайнер. — С торца, чтобы выровнять и объединить в одну композицию вход в спальню и не терять торцевое пространство, мы добавили зеркало с подсветкой в нише — выглядит очень эффектно».




Спальня получилась совсем небольшой, но все же это отдельное помещение с полноценной гардеробной, которая отделена от основного пространства комнаты жалюзийной перегородкой из массива дерева. «В ванной комнате все тоже очень функционально, — добавляет дизайнер. — Под длинной столешницей прячется и место хранения для косметики, и корзина для белья, и стиральная машина». В проекте использовались: диван SK Design; столик и ковер kover.ru; картина Art Lover; декор Izzi Décor; паркет Esse.









