Просторная квартира в Москве по проекту Анастасии Яровой: инвестиция в недвижимость
5 декабря 2025 г.

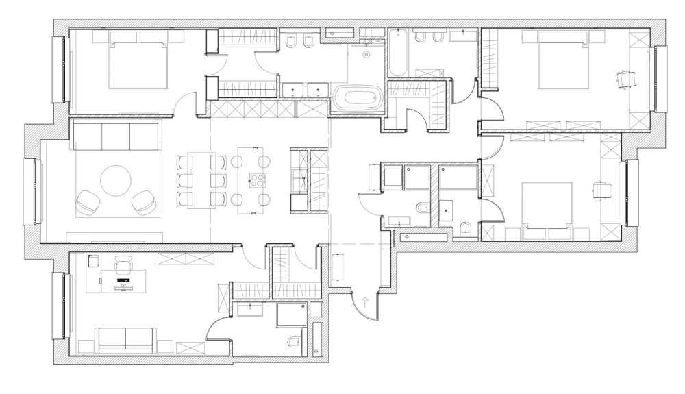
Эту просторную московскую квартиру площадью 187 кв. метров дизайнер Анастасия Яровая, основатель студии AIRE, оформляла для последующей продажи. «Ключевой задачей при работе над этим интерьером было найти баланс между универсальностью архитектурных решений и возможностью для персонального диалога с пространством, — говорит Анастасия. — Важно было не просто создать красивую и удобную квартиру, а выстроить ее как актив — ликвидный, универсальный, способный подстраиваться под разные сценарии жизни».
По теме: Квартира на продажу в историческом центре Москвы: проект Юлии Сорокиной

«Нам предстояла работа с квартирой в бетоне с видом на киностудию Мосфильм и зеленый массив с одной стороны, на двор — с другой. Когда я впервые вошла в это пространство, меня поразили панорамные окна, открывающие вид на зелень, залитую теплым вечерним светом. Закаты здесь по-настоящему кинематографичные, и именно с этого момента стало ясно, что интерьер должен не спорить с пейзажем за окном, а тонко его дополнять».


«Это просторное жилье с четырьмя спальнями и пятью санузлами рассчитано на большую семью или тех, кто ценит масштаб и продуманный интерьер. Гостевые спальни можно превратить в кабинет, спортзал или гардеробную, не теряя при этом общей гармонии. Такой подход позволит будущим владельцам адаптировать интерьер под собственные нужды, не внося кардинальных изменений. Когда проект создается без конкретного заказчика, особенно в премиальном сегменте, дизайнер сталкивается с особой задачей: сохранить индивидуальность пространства при отсутствии четких личных предпочтений. В таких случаях ставка делается на универсальность и безупречное качество отделки — то, что формирует основу».

«Четыре мастер-спальни с собственными санузлами — решение, которое сразу выводит планировку на уровень высокого комфорта. Одну из спален удобно использовать как кабинет — она уединенная и достаточно изолированна. Две другие логично отвести под детские, а если дети уже выросли, одну можно оставить гостевой, а во второй обустроить просторную гардеробную или приватную зону для отдыха».

«Моя задача заключалась в том, чтобы выстроить интерьер как продолжение городской панорамы: сделать его сдержанным, наполненным воздухом и светом, современным, но при этом теплым. Чтобы пространство оставалось тактильным и живым, мы использовали нейтральную цветовую гамму. При этом мы оставили возможности для персонализации: книжные полки в спальне, домашняя библиотека, обрамляющая ТВ-зону в гостиной, открытые полки на кухне — такие элементы не только задают характер, но и приглашают будущих владельцев продолжить диалог с интерьером. Здесь они смогут разместить любимые книги, фотографии и памятные предметы из путешествий».

«Я сознательно выбрала нейтральную палитру — бежевые и серые оттенки, натуральное дерево, камень с яркой фактурой. В этом проекте не стояло задачи «удивлять» — хотелось создать атмосферу тихой роскоши, где материалы, текстуры и детали говорят сами за себя. Для организации хранения предусмотрены три полноценные гардеробные комнаты, а во всех возможных нишах установлены встроенные шкафы. В просторной квартире места для хранения много не бывает, особенно если хочется сохранить ощущение легкости: лаконичный интерьер требует минимум визуального шума, а значит — максимум скрытых решений».

«Высокие потолки задают ощущение свободы, а продуманная инженерия обеспечивает максимальный комфорт и удобство. В квартире установлены домашний кинотеатр и профессиональная аудиосистема Sonance. Уже на этапе проектирования был предусмотрен сушильный шкаф — его интеграция в систему вентиляции позволила создать эффективное и деликатное решение для ухода за одеждой. Вся входящая в квартиру вода проходит многоступенчатую систему очистки и умягчения, что важно как для здоровья, так и для сохранности бытовой техники».
















