
В собственной квартире дизайнеров Яны и Георги Аспанадзе читается увлечение владельцев азиатской культурой и эстетикой ваби-саби. Японская философия учит видеть характер и красоту в разнообразии текстур, эстетике ручного труда, несовершенстве, и вся вариативность и насыщенность палитры интерьера стала отражением этого взгляда.
По теме: Молочно-белая квартира 70 кв. метров в центре Минска: проект Влада Кудина
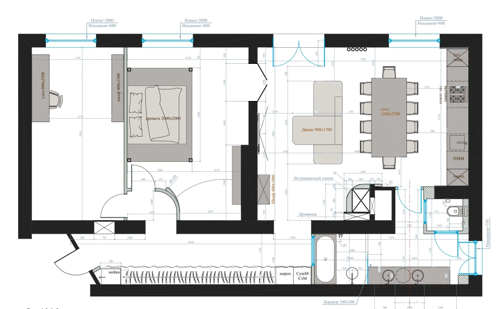
Расположенная на Советской улице в Краснодаре квартира занимает одно из пространств в здании бывших казарм 1934 года постройки. «Главное ее достоинство — это, конечно, высота потолков, — рассказывает Яна. — Вскрыв слои обшивки перед началом ремонта, мы восхитились сохранности всех поверхностей. А главный недостаток— не очень хорошая отапливаемость, характерная для старых домов. Здесь нас выручает камин. Дымоходы были предусмотрены в каждой комнате, но мы оставили только один — в гостиной».


«Мы хотели превратить квартиру в теплую «пещеру», которая, несмотря на кажущуюся эклектичность, полна гармонии. Ориентиром была любовь — во всем, от мебели и досок для пола до фактуры камня».


«Мы не могли определиться с одним типом плитки для санузла и решили использовать все 11, которые нам понравились. По той же причине на полу уложена доска разных оттенков. Материалы для стола — 14 пород дерева — Георги подбирал самостоятельно. Он дизайнер-столяр, и большая часть мебели в квартире выполнена его руками».


«В основе цветовой гаммы — тона сырой земли, сухого дерева, охры, умбры, глины и угля. Штукатурку на стенах создавали по откровенно необычному запросу — «замша сложного оттенка шоколада с легким эффектом инея, как бы слегка запотевшая». Это был мой первый и потрясающе удачный опыт работы с такого рода отделками».


Обеденный стол выполнен Георги Аспанадзе, над ним — знаменитая люстра от Ingo Maurer. «Мы адаптировали ее под себя и заменили оригинальные подвесы из японской бумаги на листы сусального золота, — признается Яна. — А роль несущей балки между гостиной и кухней выполняет обычный железнодорожный рельс. Этот факт показался нам забавным, и рельс решили оставить открытым».





