Компактный дом 84 кв. метра для семьи из четырех человек по проекту Ольги Тищенко
15 января 2026 г.

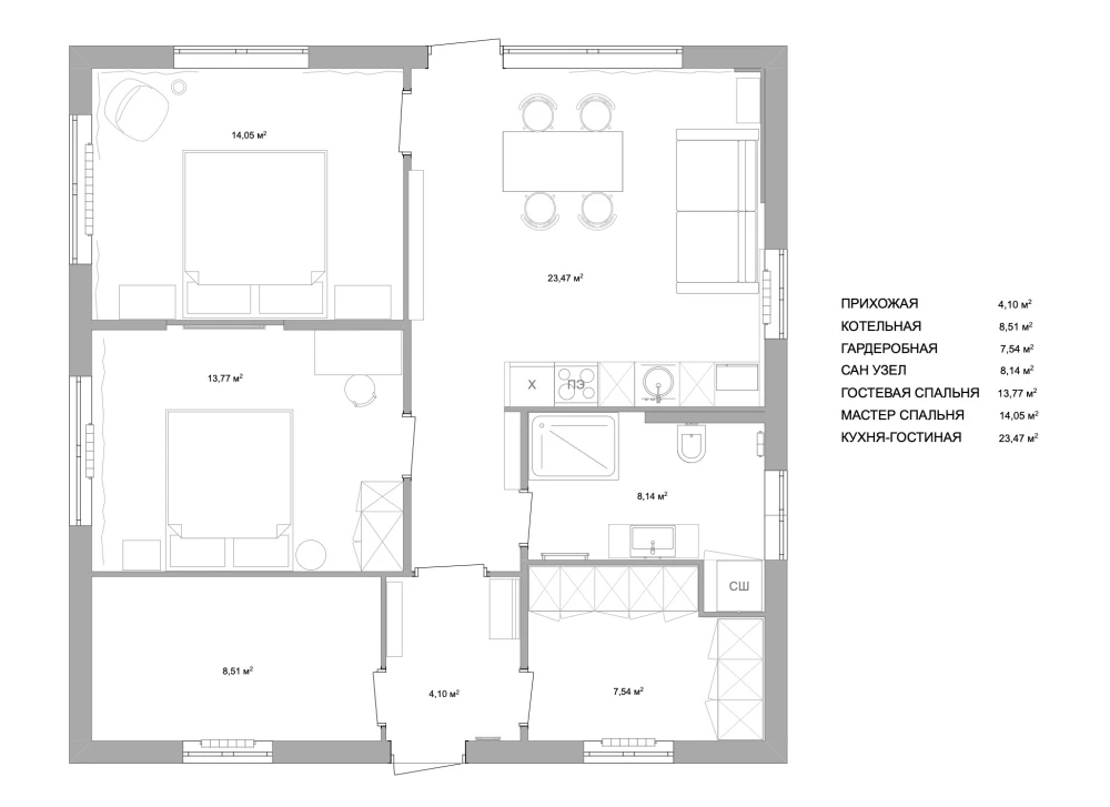
Этот компактный дом площадью 84 кв. метра заказчик построил на одном дыхании всего за один месяц. И после обратился за помощью в отделке и проработке стилистики пространства к дизайнеру Ольге Тищенко. Дом для постоянного проживания расположен в дачном поселке на берегу реки в Домодедовском районе Подмосковья — из окон открывается живописный вид на берег, и все располагает к покою, созерцанию, уединению и отдыху.
По теме: Гибридное пространство по принципу офис-дом: проект Ольги Тищенко для молодой компании
Для заказчиков, молодой семьи, была важна эргономика и функциональность, а также большое количество зон для хранения. При этом ограниченный бюджет был озвучен с самого начала. Перед дизайнером стояла задача создать удобный и современный интерьер в сжатые сроки — всего за несколько месяцев.

Ольга Тищенко
Дизайнер




Дом небольшой, но подходит для комфортного размещения четырех человек на выходные или каникулы — здесь есть большая гостиная-столовая-кухня с выходом на просторную террасу, две спальни, приличный по размерам санузел, гардеробная во входной группе и топочная, квадратные метры которой позволяют разместить там не только необходимое оборудование, но и прачечную, кладовую и прочее.

Одна из ключевых точек концепции — максимальное присутствие естественного света в помещениях: большие окна были запланированы заказчиками изначально. Поэтому текстиль для окон подбирался максимально прозрачный, за исключением спальни с блэкаут-шторами.



Цветовых акцентов в интерьере практически нет — светлые, почти белые стены, такое же светлое дерево и черные элементы светильников. Поддерживают атмосферу абстрактные графические работы и керамика простых форм. Интересным решением стала отделка потолка гостиной вагонкой под белым полупрозрачным маслом. «Этот прием я считаю своей большой удачей. Удалось сделать пространство визуально просторнее, сначала убедив заказчика — ведь вагонка на потолках и стенах в доме считается пережитком прошлого у молодого поколения», — говорит дизайнер Ольга Тищенко.










