Уютные апартаменты в Дубае по проекту Elamo Studio: подарок молодоженов для родителей
17 ноября 2025 г.

Эти две небольшие квартиры в Дубае молодая пара приобрела в качестве подарка для своих родителей: двухкомнатная площадью 58,66 кв. метров предназначена для матери и младшего брата жениха, а студия 33,76 кв. метров — для матери невесты. Чтобы подарить родным не просто жилье, а ощущение заботы и безопасности в новой для них стране, заказчики обратились к специалистам из студии Elamo. Дизайнеры следовали принципам стиля джапанди и наполнили интерьеры сложными фактурами, теплотой и уютом. Сдержанная палитра, натуральное дерево и текстиль, рифленое стекло складываются в целостную живую композицию.
По теме: Съемная квартира в теплых тонах в Дубае: проект Ирины Абрамовой

«Квартиры расположены в башне Socio Tower в Dubai Hills Estate — одном из самых зеленых и комфортабельных жилых комплексов города, — рассказывают дизайнеры. — Исходная планировка двухкомнатной квартиры была переосмыслена без вмешательства в несущие конструкции. Мы убрали стеклянную перегородку между гостиной и спальней, перенесли вход в мастер-зону, создали уютную прихожую с системой хранения и спроектировали симметричные двери в спальню. Эти минимальные, но точные изменения улучшили циркуляцию и сделали компактное пространство визуально просторнее».


«Почти вся мебель была изготовлена на заказ: встроенные шкафы, кухня, рабочий стол и прикроватные тумбы. Особое внимание уделено скрытым системам хранения: гардероб в прихожей, ниши в спальне, интегрированные тумбы. Фактурная панель в тон стен стала деликатным художественным акцентом, не нарушающим общую гармонию. Кухня-остров визуально зонирует пространство, оставаясь частью единой композиции. Тактильно приятные материалы — хлопок, лен, шерсть — привносят в интерьер мягкость».





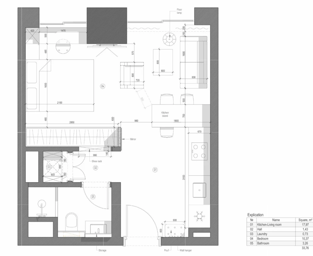
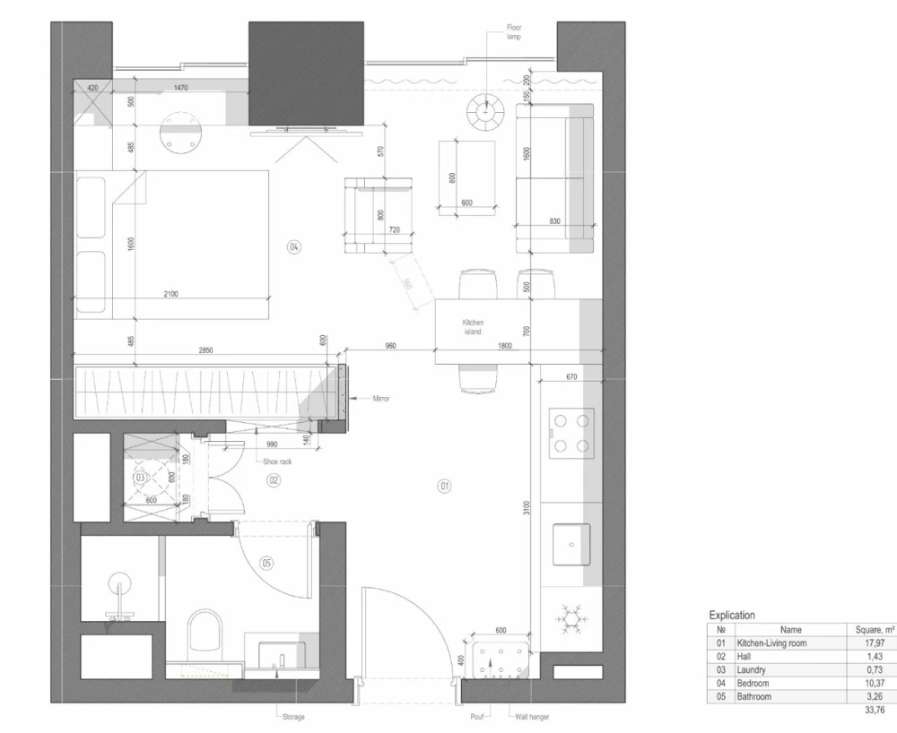
«Типовую однокомнатную квартиру мы преобразовали в студию с выделенной мастер-зоной. В результате получилось светлое открытое пространство с четким зонированием: спальная зона, гостиная, Г-образная кухня с островом, полноценная ванная комната и встроенная система хранения. У окна с спальне мы организовали многофункциональную зону для работы или отдыха, а в прихожей органично встроили в архитектуру пространства гардероб».



«Когда мама заказчицы Татьяна впервые переступила порог этой квартиры, ее глаза наполнились слезами. То, что она увидела, было не просто новым домом, а настоящим проявлением любви и заботы — искренним подарком от ее дочери и зятя, которые хотели, чтобы она не чувствовала себя в Дубае чужой. Татьяна переехала в ОАЭ из России вместе со своей кошкой, оставив позади привычную жизнь. Переезд был окончательным, и она не принимала участия в ремонте: проектирование и строительство проходили полностью без ее ведома. Ключи она получила только в день переезда — это сделало ее первое знакомство с этим пространством очень эмоциональным, интимным и живым».







