_resized.jpg.webp)
«Проект GH10 — это опыт исследования, как форма и свет могут стать инструментами внутреннего равновесия. Пространство построено на чистой геометрии и нейтральной материальности, где каждый объем подчинен общей структуре», — говорят архитекторы и основатели Kodd Bureau Дарья и Дмитрий Колосковы.
По теме: Экстремально узкое здание кофейни в Бухаресте от Vinklu
Система хранения стала основой планировки — она помогает выстроить пространство, определить пропорции и ритм. Все технические элементы и бытовые детали спрятаны в едином периметре встроенных шкафов, благодаря чему интерьер воспринимается как монолитный объем, а не как набор отдельных предметов. Мебель и архитектура не разделены — они буквально находят продолжение друг в друге. Это позволило освободить пространство, добиться цельности и подчеркнуть пропорции.
_resized.jpg.webp)
_resized.jpg.webp)
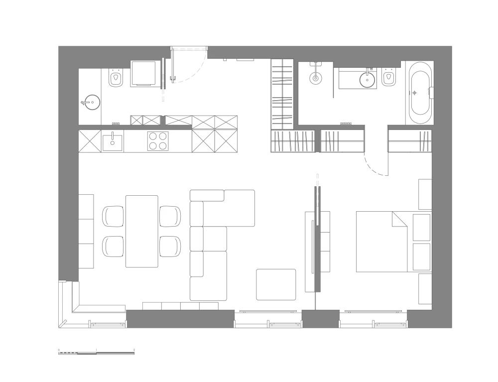
Площадь квартиры — 60 кв. метров. Пространство с удобной геометрией и расположением окон предлагало хороший потенциал — в нем форма и пустота работают вместе. «Интерьер создавался для человека, которому важно внутреннее равновесие, — объясняют Дарья и Дмитрий. — Основной запрос — убрать все лишнее: цвет и текстуры, а также стыки и швы материалов. Нам нужно было собрать пространство как систему, где ничто не привлекает внимание без необходимости».
_resized.jpg.webp)
_resized.jpg.webp)
_resized.jpg.webp)
«Цвет здесь приходит извне. Белый фон стал инструментом — он меняется под действием дневного света, отражает оттенки неба и пейзажа за окнами. Стекло и раздвижные перегородки облегчают массивные формы и создают ощущение текучести. Минимализм конструктивных решений позволяет воздуху двигаться свободно, оставляя пространство открытым».
_resized.jpg.webp)
_resized.jpg.webp)
_resized.jpg.webp)
Мы подбирали мебель, которая не конкурирует с архитектурой. Простые формы, нейтральные тона, мягкие пропорции. Все подчинено общей логике, которая была в запросе клиента. Проект получился честным и цельным. Он отражает наш подход — точные пропорции, максимум смысла».
_resized.jpg.webp)
_resized.jpg.webp)
_resized.jpg.webp)
_resized.jpg.webp)
_resized.jpg.webp)


