Семейный загородный дом в Подмосковье: бразильский модернизм в проекте Елены Албатовой
15 ноября 2025 г.

Дизайнер Елена Албатова оформила интерьер загородного дома площадью 371 кв. метр. Пространство создавалось для семьи руководителя крупной столичной компании. Главным пожеланием заказчиков стало отсутствие ярких красок, все должно было быть максимально спокойным и комфортным.
По теме: Семейный загородный дом с итальянской мебелью: проект Марины Жеренко
В строительстве дома автор проекта участия не принимала, до ее появления на объекте уже была выполнена отделка фасада травертином и деревом, грамотно спланированы инженерные узлы, но сама концепция оказалась устаревшей — пришлось частично переделывать электрику и переносить привязки по сантехнике.

Елена Албатова
Дизайнер интерьера


Экстерьер дома и пожелания заказчика продиктовали цветовую палитру — максимально натуральные спокойные оттенки. Единственное место, где удалось уговорить владельца на яркое пятно, — это зона спа, в которую вписался терракотовый диван. «Мы стояли с заказчиком у окна и смотрели, как на улице осенними красками полыхали деревья, — рассказывает Елена. — И подумали, почему бы не привнести эту красоту в зону отдыха. Потом в каминной зоне появилась картина «Мостик» художника Сергея Заноч. Так постепенно мы и добавляли цветовые пятна».







При выборе мебели опирались на функциональность и удобство, много предметов было сделано на заказ по эскизам автора проекта. «Но самое главное — удалось представить в этом интерьере винтажную мебель от бразильских модернистов середины прошлого века. Этих дизайнеров я безумно люблю, знаю историю создания этой мебели и коллекционирую сама!».













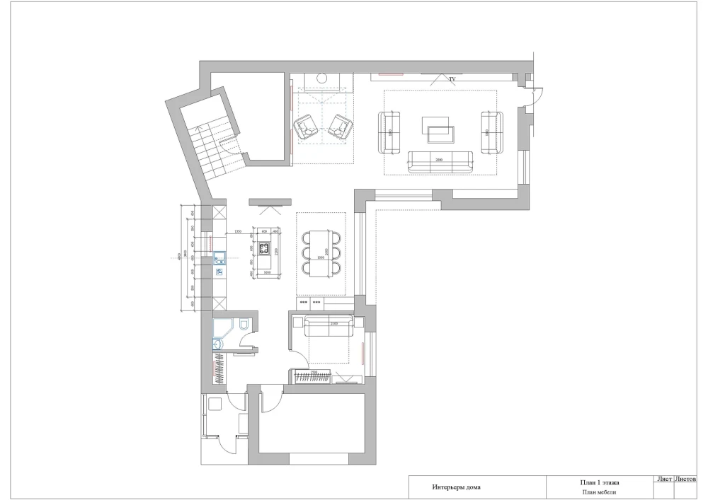
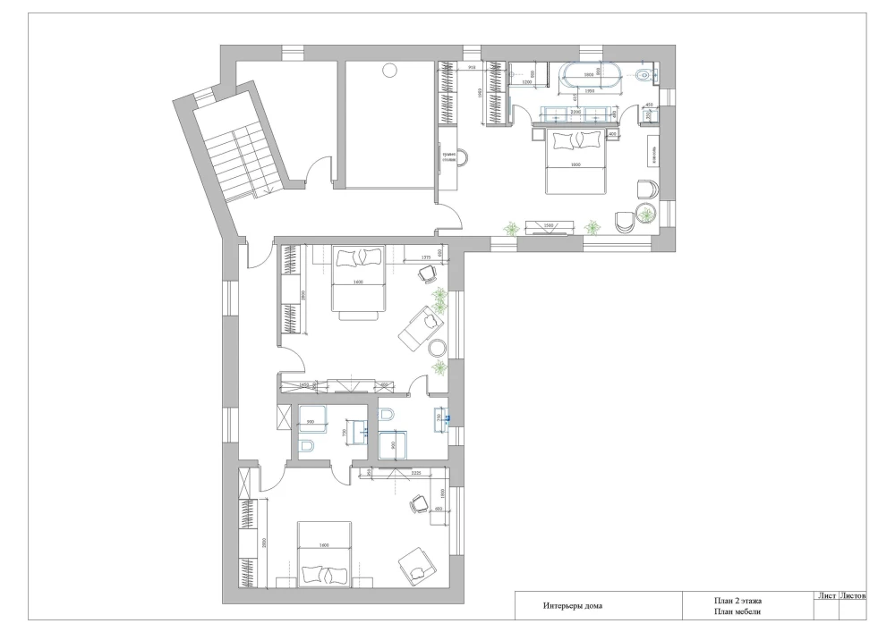
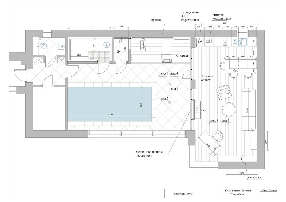
Бассейн сделан с противотоковой системой, и, несмотря на короткую дорожку бассейна, можно получить максимально возможную нагрузку. «Мне также было интересно поработать над лестничным маршем. Он достался мне несколько проблемным. Но в итоге получилась красивая комбинированная лестница с парящими ступенями и ступенями на металлическом каркасе, с архитектурной геометрией и подсветкой. Также удачно спроектирована мастер-ванная при спальне. Двери скрыты в перегородке, отделанной рейками, за изголовьем кровати».




«После завершения работ, когда я стала просить у заказчика разрешения на фотосъемку, он, задумчиво глядя в окно, сказал: «И что фотограф увидит за окном?». Он думал, что я откажусь от этой затеи. В итоге пришлось заняться еще и ландшафтом, я как раз собиралась претворить эти мечты в жизнь».






