Офис строительной компании в Петербурге: проект студии Motif с иконами дизайна
13 ноября 2025 г.

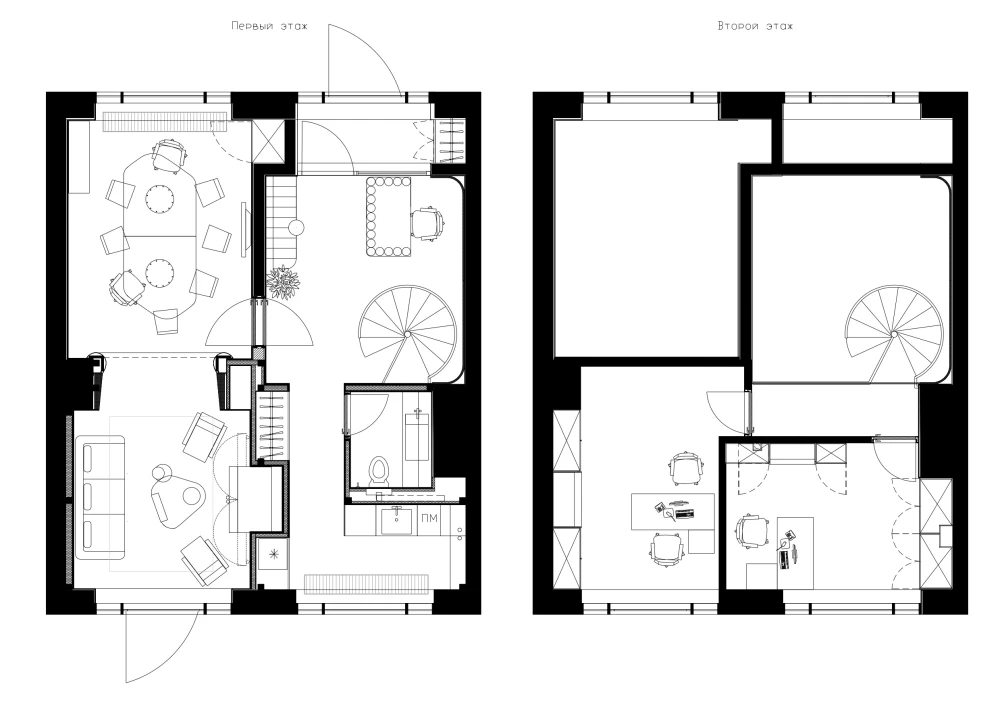
Дарья Егорова и Татьяна Соловьева, архитектурная студия Motif, создали современный, немного брутальный, но самое главное — вневременной и комфортный интерьер офиса для строительной компании. Пространство расположено на Васильевском острове в Петербурге. Изначально помещение имело высоту потолков 5,7 метров, поэтому дизайнеры решили надстроить второй уровень, увеличив таким образом площадь до 97 кв. метров.
По теме: Офис строительной компании в Екатеринбурге по проекту студии Nayada Design
На первом уровне разместили зону ресепшен с эффектной винтовой лестницей, компактную кухню и санузел. Мощные черные трубы и шлифованный металл стойки ресепшен подчеркивают индустриальную тему деятельности компании.




Также на первом этаже организовали просторную переговорную, которую разделили кованой металлической аркой на две части: лаунж-зону и собственно пространство для встреч с большим столом. Душой лаунж-зоны стал бар, разработанный дизайнерами специально для проекта. Фасады выполнены из плетеной натуральной итальянской кожи, внутри использовано состаренное зеркало, пейзажный мрамор и редкий наборный шпон с текстурой, напоминающей ткань.





На втором уровне расположены два кабинета для ключевых сотрудников компании. Помещения получились строгими, сдержанную атмосферу разбавили яркими желтыми акцентами. Нестандартным интерьерным решением стал пол из стальных листов. Весь пол первого этажа выполнен из бесшовного терраццо с добавлением натурального мрамора. Также натуральный терраццо был использован при создании монолитной раковины необычного яркого-желтого цвета в санузле.


«Также мы добавили в проект уже готовые предметы, некоторые из них — абсолютные иконы дизайна, например кресла Utrecht Геррита Ритвельда и диван Maralunga Вико Маджистретти, — рассказывают дизайнеры. — С высоты пятиметровых потолков над стойкой ресепшен, вниз спускаются скульптурные воздушные светильники Falkland, разработанные Бруно Мунари. Эффектная световая композиция из лент и колб от Flos протянулась над столом переговоров.
Во всех помещениях офиса расположились эргономичные кресла немецкой компании Interstuhl — их можно увидеть в фильмах о Джеймсе Бонде, в сценах офиса МИ-6. Также мы хотели привнести в интерьер современное искусство. На шпонированных панелях ресепшен мы разместили произведение современного художника Дмитрия Горбунова, выполненное на заказ специально для этого пространства. На втором уровне можно наблюдать динамичную световую инсталляцию «Северное сияние», вдохновленную природой регионов, где строятся объекты компании».








