
Дизайнер Александра Бурмистрова создала пространство для московского бутика бренда 404 not found с акцентом на идентичность. Марка была основана дизайнером из Петербурга Аленой Феликсовой, а в основу концепции легла философия ошибки — возможность позволить себе ошибаться, таким образом проявляя максимальную свободу.
По теме: Маленький магазин спортивной одежды Fluide на Большой Никитской: проект Александры Бурмистровой
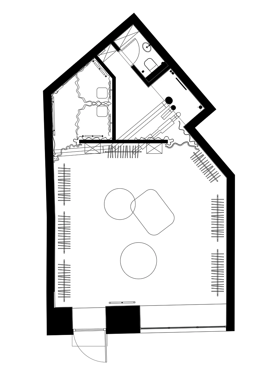
Пространство площадью 61,5 кв. метр расположено в центре столицы на Большой Никитской. Работу начали с абсолютно пустого помещения, в котором сформировали все необходимы зоны: санузел, зону хранения, примерочную и демонстрационное пространство. У заказчицы было четко сформировано видение будущего интерьера, а потому дизайнеру оставалось лишь соединить концепцию и функционал, а также учесть финансовую составляющую.




В пространстве песочные оттенки соединили с лаковыми глянцевыми покрытиями. Вся мебель индивидуального изготовления, произведена и выполнена по эскизам автора проекта. Интересно, что Александре пришлось лично протестировать нагрузку на рейловую систему своим весом, как на турнике.











