Минимализм и теплый крафт в цветочной студии в Петербурге: проект студии Akke
2 ноября 2025 г.

Студия архитектуры и дизайна Akke, основанная Анастасией Романовой и Екатериной Тороповой, оформила интерьер цветочной студии Kraft Flowers к ее 10-летию. «Задачей было сохранить эмоциональную ДНК бренда, его уют и теплоту, придав интерьеру современную выразительность», — говорят дизайнеры.
По теме: Akke: паназиатский бар-бистро John Doe в Петербурге
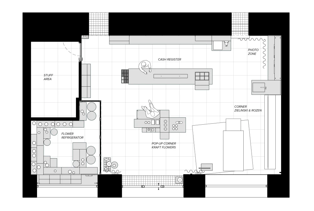
Камерное пространство (площадь торгового зала и холодильника составляет 60 кв. метров) находится на Петроградской стороне в Петербурге в доходном доме 1903 года постройки в стиле эклектики по проекту архитектора В. В. Гейне. «Студия занимает это помещение с 2018 года и в целом уже имеет имя и узнаваемость в городе, — рассказывают авторы проекта. — Существующее пространство выглядело неплохо, но дизайн местами морально устарел, кроме того, необходимо было решить вопросы утилитарного характера: например, размещение выкладки сопутствующих товаров. Основная гамма интерьера была достаточно темной, мы же, наоборот, предложили сделать интерьер более светлым и мягким для восприятия».
Заказчики — трое совладельцев Инна Трусова, Владимир Трусов и Максим Максимовский — поставили задачу обновить интерьер к юбилею Kraft Flowers. Нужно было показать, что бренд развивается, но при этом остается вне времени и трендов. «Они просили сохранить уют, который уже сложился в интерьере студии, как основу, но пересмотреть основные решения, — комментируют дизайнеры. — Важным моментом было также сохранение некой «крафтовости» в интерьере: он не должен быть идеальным, здесь могут соседствовать разные фактуры и материалы, грубые и мягкие, главное, чтобы был упор на натуральность и уют. Еще было пожелания сделать что-то «вау» в холодильнике с цветами, который также является уличной витриной студии, и оптимизировать выкладку товаров». Необходимо было учесть и вкусы гостей студии — прогрессивных горожан с хорошей насмотренностью, ценящих вкус, сервис, дизайн, лаконичность.

Перепланировка не требовалась — она в целом осталась прежней. Но зону сезонной выкладки команда Akke предложила выделить — ее переместили на отдельно стоящий остров в центре зала, состоящий из мобильных модулей разной формы и размера. Он, как и практически вся мебель и элементы проекта, был придуман и отрисован дизайнерами и изготовлен на заказ. Похожее решение использовали для экспозиции букетов и цветов в холодильнике: разноуровневые модули позволяют показать цветы в наиболее выгодном свете, причем как со стороны магазина, так и со стороны улицы. А для выкладки подарочных товаров — ваз, косметики, свечей, посуды — придумали вместительные полки вдоль стен.




Палитра интерьера сочетает спокойные природные оттенки. «В основе — отделка из деревянных панелей, натуральный шпон дуба, — комментируют Анастасия и Екатерина. — Стол флориста отделан мелкой квадратной плиткой. Это прием, который отдает дань прежнему интерьеру студии и становится узнаваемым для постоянных гостей. Кроме того, это практичное решение, особенно для поверхностей, которые часто контактируют с водой. Стойка флориста является свежим акцентом на фоне теплой деревянной отделки. В холодильнике-витрине присутствуют всего три цвета в отделке: графит как основа, на фоне которой свежие цветы выглядят особенно ярко, свежий зеленый оттенок, основанный на брендинге студии, — цвет для модулей под цветы. И белый — была также использована плитка в отделке модулей под цветы. Таким образом получилось выразительное и лаконичное решение, которое, с одной стороны, выделяет продукт, а с другой — не конфликтует с ним».

В итоге самое главное удалось — создать минималистичное, экологичное и аутентичное пространство. «Интерьер наполнен мягким естественным светом, благодаря чему пространство ощущается воздушным и открытым, — отмечают дизайнеры. — Концепция построена на некотором противопоставлении: основа — это теплые оттенки дерева (отсылка к цвету крафта), четкие геометрические формы, иногда более грубые и строгие материалы, такие как бетон и металл, соседствуют со свежим и выразительным зеленым. Зеленый цвет в деталях подчеркивает связь с растительным миром и держит внимание на цветах как главном объекте».


















