
Дизайнер Юлия Андриевская оформила на Цветном бульваре в Москве шоурум компании «Эстетика» — эксклюзивного дистрибьютора брендов Akzentz, StraDerm и Luminous в России. Компания строит свою философию на безупречном качестве продукции и искренней заботе о клиенте: создание дизайн-проекта для этого пространства стало логичным продолжением этих ценностей.
По теме: Лаконичный бутик бренда купальников в историческом особняке: проект Полины Черняк


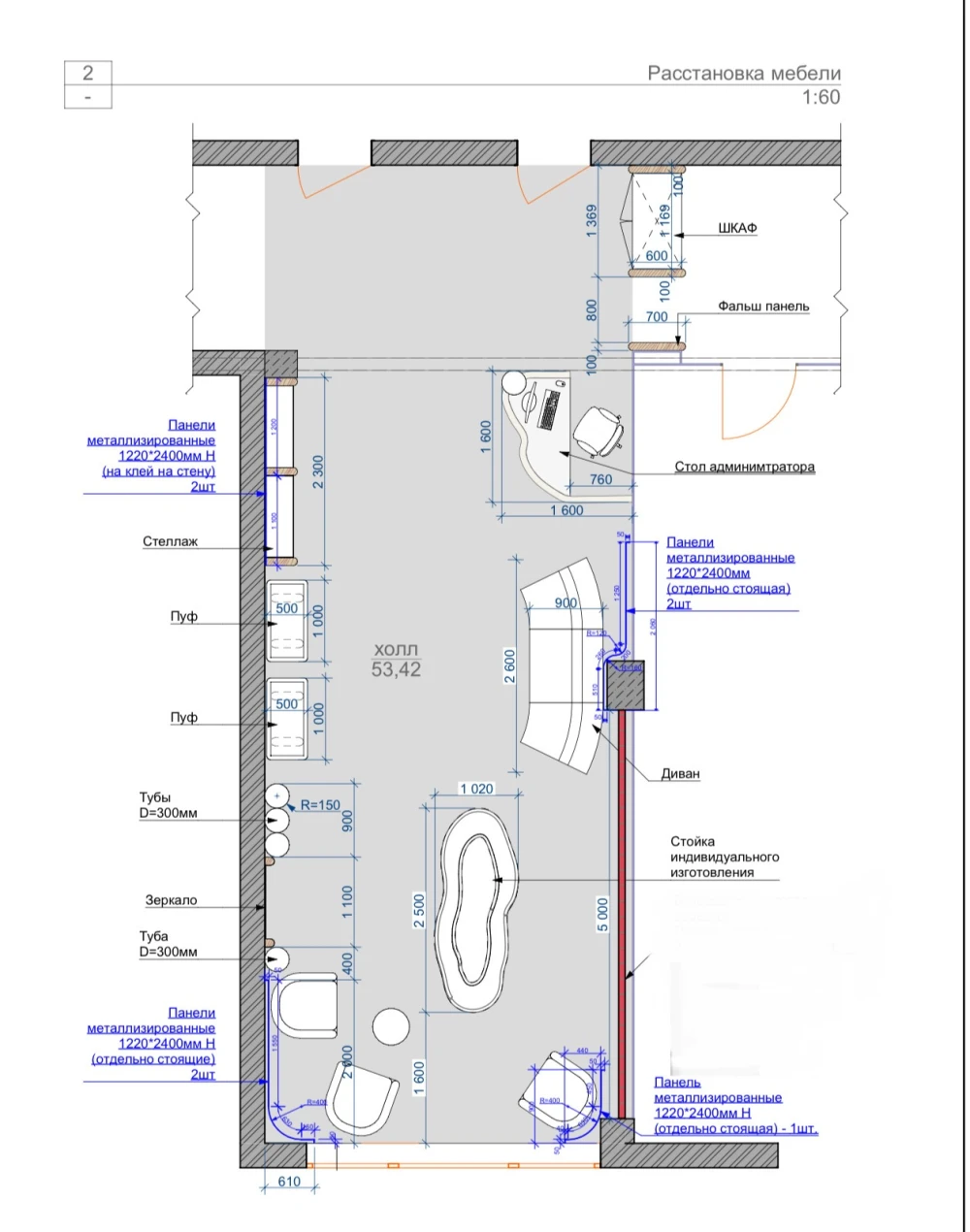
«Заказчица, молодая девушка с отличным вкусом, хотела получить интерьер-хамелеон для презентации новых коллекций лаков и кремов. Главным условием было не трогать пол и потолок, так как сроки на реализацию составляли всего 1-2 месяца. Нужно было из существующего пространства — пустой серой комнаты с черными трековыми светильниками и плиткой на полу — создать нечто запоминающееся. Обязательно нужно было организовать остров с подсветкой, экран для рекламных роликов и несколько зон отдыха. Для нас было важно, чтобы атмосфера шоурума отражала тот же уровень премиальности и внимания к деталям, что и сама продукция».

«За основу дизайна мы взяли существующий серый пол. Поскольку коллекции лаков постоянно меняются, интерьер должен был стать нейтральным фоном для любых цветовых сочетаний. Спокойный серый я оживила контрастом фактур: грубоватая штукатурка чередуется с глянцевыми серебристыми панелями. Мягкая мебель, созданная по моим эскизам, обита шерстяным букле — это добавило тактильного тепла и подчеркнуло скульптурность форм. Чтобы завершить композицию, я ввела в отделку мебели акценты из темного дерева. Получился сбалансированный ансамбль из металла, камня, шерсти и дерева — строгий, но не холодный».


«Всю мягкую мебель мы создавали по моим эскизам и стремились придать ей скульптурные запоминающиеся формы. Главным арт-объектом стал остров для продукции, дополненный люстрой-спутником с настраиваемой подсветкой — они образуют единую композицию, которая сразу притягивает взгляд. Остальная мебель — шкафы, столики, банкетки и зеркало — выполнена из шпона дуба с радиусными вставками. В проходном шкафу мы использовали массив дуба как акцент, а стеллаж для кремов изготовили из дерева и металла. Отдельный шкаф в холле отведен для верхней одежды гостей».















