
Архитектор Наталия Рыбакова оформила на первом этаже клубного комплекса River Residences, архитектурную концепцию которого разработало бюро SPEECH, квартиру 84 кв. метра с террасой 61 кв. метр для оперной певицы. Пространство, расположенное в одной из самых зеленых и престижных локаций Москвы — Серебряном бору, отражает творческую натуру хозяйки и сочетает мягкость линий с функциональными решениями для комфортной жизни.
По теме: Наталия Рыбакова и Zeworkroom: двухэтажная квартира 68 кв. метров

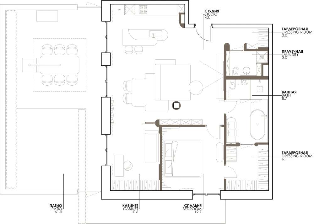
«Квартира изначально имела правильную форму, а из панорамных окон открывался вид на зеленый двор, но несущая колонна в центре пространства мешала создать большую гостиную, о которой мечтала заказчица, — рассказывает автор проекта. — Я переосмыслила этот «недостаток», сделав колонну круглой и организовав вокруг нее движение, что превратило ее в украшение комнаты».


«Проект создавался для жизнерадостной молодой оперной певицы. Ключевым ее пожеланием было организовать гостиную с максимальным количеством окон, но при этом создать изолированную музыкальную комнату. Решением стала зеркальная перегородка: когда она раскрыта, пространство становится единым. Параллельно стояла сложная планировочная задача: организовать проход в гардеробную, который не пересекался бы со спальным местом. Для этого мы организовали проходной санузел, который стал функциональным буфером и объединил оба пространства».

«Мне хотелось передать мягкость и плавность характера заказчицы через скругленные стены и мебель. Я впервые применила в отделке архитектурный бетон: в ванной он образует текстуру скалы, а в музыкальной комнате стал основой для панно с луной. Также мне давно хотелось использовать в проекте диван в стиле шезлонга, но площади для его размещения вместе с полноценным обеденным столом не хватало. Так появилась гибридная модель, совмещающая в себе функции дивана и скамьи. Еще одной удачной находкой для экономии места стала тонкая перегородка из искусственного камня вместо капитальной стены в ванной комнате. Она эффектно разделяет зону душа и санузла и пространство с ванной».


«Цветовая палитра построена на сливочных тонах с сероватым подтоном. Черный был противопоказан в этом пространстве, поэтому все металлические детали выполнены в цвете никель. Поскольку в квартире не была предусмотрена система радиаторного отопления, но существовал запас по электромощности, перед нами стоял выбор системы обогрева. Мы остановились на водяных теплых полах, уложенных как под плитку, так и под паркет. Это потребовало тщательного поиска подходящей инженерной доски. Чтобы избежать визуального шума, мы интегрировали штатные блоки кондиционеров, не подлежащие замене, в мебель с перфорированными фасадами».



















