
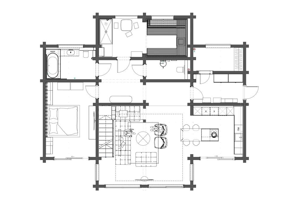
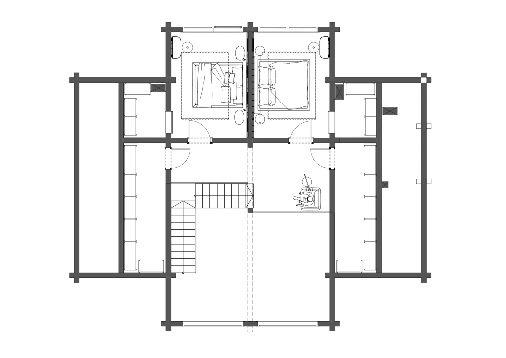
Сергей Фролов, Максим Ефремов и Любовь Романова из студии 111d.buro оформили на берегу реки Оки загородный дом площадью 200 кв. метров с умиротворяющими видами на Дуденский монастырь. Дом, построенный компанией Holz House, создавался как убежище от городской суеты и место для уединенного созерцания природы. Главным и безусловным пожеланием заказчика было максимально открыть и подчеркнуть фактуру деревянного бруса, что продиктовано его искренней любовью к природным аутентичным материалам.
По теме: Семейный загородный дом в Подмосковье: проект бюро ARXY

«Основа дома из натурального дерева — крупного клееного бруса высотой 320 мм — была главным достоинством проекта, но и основной сложностью, — рассказывают дизайнеры. — Деревянные стены легко превращают интерьер в однообразное пространство, напоминающее баню. Нашей задачей было сохранить их монументальность, но избежать ощущения избыточности».

«Как таковой перепланировки не было, но наша команда продумывала функционал всех зон и взаимосвязь комнат. Мы выстроили коммуникацию между помещениями, объединив их единой структурой — черной графичной решеткой в японской технике кумико. Это стало концептуальной основой проекта».

«Цветовая палитра строится на контрастах: соломенный цвет дерева служит фоном, угольно-черная графика задает структуру, а японский красный расставляет акценты. При выборе мебели мы отдали предпочтение итальянским производителям: диваны B&B Italia, кресла Kristalia, столики Cassina, освещение Flos, Vibia и Nemo».


«Заказчик настоял на натуральных материалах и отказался от натяжных конструкций на потолках. Мы пошли на риск и использовали гипсокартон с уникальным решением от Decaro Engineering — «парящим профилем», который предотвратил появление трещин при усадке деревянного дома».
























