Светлая квартира в панельном доме для семьи мотоциклистов: проект Ксении Шемяковой в Москве
9 октября 2025 г.

Дизайнер Ксения Шемякова оформила для активной молодой пары, которая на момент ремонта находилась в ожидании ребенка, светлую квартиру в панельном доме на Профсоюзной улице в Москве. В основу проекта лег образ «горного воздуха» — так автору удалось наполнить пространство площадью 85 кв. метров ощущением света и простора, но при этом избежать стерильной белизны.
По теме: Квартира с винтажной мебелью для молодой пары: проект Юлии Даниловой-Нитусовой в Москва-Сити

Ксения Шемякова
Дизайнер интерьера

«Первое, о чем я подумала на замерах: «хочу впустить сюда очень много света», — рассказывает автор проекта. — Зелень за окнами была так густа, что буквально поглощала освещение. Сложность усугубляла планировка: квартира угловая и расположена над аркой, кухня маленькая, типичная для панелек, и всего две стены, которые можно было демонтировать. При этом заказчики мечтали об открытом пространстве. Это было настоящим вызовом — создать ощущение простора в таких условиях».

«Заказчики очень гармоничные открытые люди, от которых буквально веет теплом и спокойствием. Заказчица преподает йогу, поэтому в квартире нужно было организовать пространство для проведения онлайн-тренировок. При этом пара любит экстремальную езду на спортивном мотоцикле — потребовалось отдельное хранение для мотоциклетной экипировки».


«Когда заказчики рассказывали о своих пожеланиях, у меня сразу сложился образ их будущего дома: светлый обволакивающий интерьер в южном духе, но с тонко внесенной ноткой брутальности — так, чтобы она легко читалась, но не утяжеляла пространство. Важно было создать функциональную и гармоничную квартиру, где можно вместе завтракать, принимать гостей, работать и проводить онлайн-конференции, но при этом обойтись без глобальных перепланировок, требующих длительного согласования».

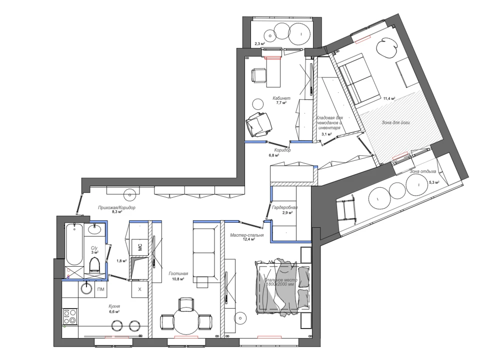
«Мы провели незначительную перепланировку — убрали стену между прихожей и двумя комнатами. Одну из них превратили в гостиную, а вторую — в кабинет со стеклянной перегородкой, которая добавила света в самую темную зону квартиры. Коридор мы сделали многофункциональным, разместили там большой шкаф и хозяйственный блок, скрытый за шторой. Отдельную кладовую отвели под чемоданы и мотоэкипировку».

«Так как дом построен в эпоху СССР, мне хотелось сохранить внутри дух эпохи, поэтому я использовала стеклоблоки, которые лаконично интегрированы в эстетику софт-минимализма. Удачным решением стало сочетание грубых фактур с мягкими тканями, шпонированными панелями и теплыми оттенками. Например, декоративная «скала» в спальне не кажется холодной благодаря окружению теплых материалов. В гостиной и на кухне штукатурка с легкой незавершенностью уравновешивается деревом и текстилем, а густая зелень за окном дополняет эту природную палитру».

«Цветовая палитра строилась на природных оттенках. На финальном этапе реализации заказчица неожиданно сообщила: «Я проконсультировалась со специалистом по Васту — нужно делать гармонизацию». Поскольку изначально мы не планировали ориентироваться на эти принципы, некоторые наши решения им противоречили. Например, спальня была не в той части квартиры, а на кухне оказалось недопустимо использовать красные оттенки — пришлось срочно менять барные стулья бордового цвета. Я узнала интересную деталь: если из-за планировки что-то невозможно расположить правильно, пространство гармонизируют, закладывая в определенные места камни — коралл, медь или серебро. Так, теперь у нас между паркетом и стеной в некоторых местах где-то «живет» коралл, а где-то серебро».










