Лаконичная квартира со скандинавским настроением: личный проект бюро SLOVO
8 октября 2025 г.

Эту московскую квартиру в жилом комплексе «Шереметьевский» дизайнеры из бюро SLOVO оформляли для себя. «Главной задачей было создать по-скандинавски уютный и одновременно по-японски элегантный интерьер, в котором приятно находиться и жить, — рассказывают авторы проекта. — На площади 70 кв. метров мы стремились создать простое и уютное пространство, наполненное предметами от российских и скандинавских брендов».
По теме: Цветной минимализм: квартира в Москве по проекту Бюро Slovo

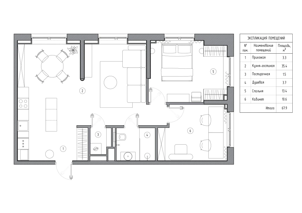
«Изначально мы уже имели представление о планировке, которую хотели видеть в квартире, поэтому задача была простой — найти на рынке что-то похожее. К сожалению, квартира уже отделана, но зато в ней было четыре комнаты. Нас также привлекло большое количество окон — пять штук, а также их прямоугольная форма, предложенная застройщиком. Для нас собственный интерьер стал полем для экспериментов — здесь мы воплотили в жизнь идеи, которые впоследствии сможем использовать в работе с заказчиками».

«В процессе работы над планировкой мы приняли решение объединить одну из комнат с кухней и гостиной, чтобы создать единое большое пространство. Кроме того, мы отказались от прихожей, что позволило обеспечить прямой вход в квартиру и освободить дополнительное место для кухонного острова. Отсутствие прихожей в этой квартире напоминает нам американские квартиры из фильмов и сериалов. Единственной проблемой оставался пилон между двумя комнатами. Однако мы нашли интересное решение — закруглить его, отделать плиткой и сделать главной фишкой интерьера».


«Мы сознательно оформили швы между плитками на пилоне с легкой небрежностью, используя в качестве маячков нарезанные профили для гипсокартона. На затирку швов потребовалось 140 кг затирочной смеси, которую мы впоследствии самостоятельно переделывали после строителей. Дело в том, что смеси было слишком много, и наносить ее равномерно оказалось сложно, она высыхала пятнами. Но мы не отчаялись, нашли краску для затирки и, вспомнив свои студенческие годы, покрасили швы своими руками. Эта кропотливая работа добавила объекту рукотворной выразительности и индивидуальности».

«Для достижения чистоты линий мы повсеместно использовали щелевой плинтус высотой 3 мм. Чтобы визуально вытянуть пространство и улучшить инсоляцию, шпонированные двери в гостиной были дополнены стеклянными фрамугами, пропускающими свет в санузел и постирочную. Входную зону, заменяющую отсутствующую прихожую, мы оформили крупноформатной плиткой 120х120 см — этот же материал, использованный на фартуке и в санузле, объединил разные функциональные зоны единым визуальным кодом».

«Цветовое решение выстроено на контрасте нейтрального фона и насыщенных акцентов. Пространство кухни-гостиной выполнено в белых тонах, которые выгодно подчеркивают мебель и архитектурные элементы. Для кабинета мы выбрали глубокий серо-зеленый оттенок Normandy Grey, который охватывает все поверхности, включая потолок, что создает камерную атмосферу. В спальне терракотовым цветом выделили гардеробную зону — этот оттенок повторяется в шкафах, на стенах, потолке и в текстиле. Яркие цветовые акценты расставлены точечно: изумрудный диван в гостиной и терракотовая затирка на колонне добавляют интерьеру динамики. Для обеденного и журнального столов мы выбрали серый цвет, так как не хотели перегружать пространство слишком темными тонами».

«Как и в большинстве наших проектов, мы решили использовать мебель российских и скандинавских брендов, а столярные изделия заказали у проверенных подрядчиков. Некоторые предметы, например кровать Yaratam из лимитированной серии или кресло Artu с выразительным силуэтом, мы заприметили на выставках и в салонах».











