
Работа с объектами под сдачу имеет свои особенности, чаще всего она предполагает небольшой бюджет, ограниченные сроки и практичные решения, в рамках которых нужно сделать интерьер, выделяющийся среди сотен объявлений. В этой квартире площадью 34 кв. метра Надежде Комаровой нужно было создать «чистое» и универсальное пространство, рассчитанное на одного, максимум двух человек. «Мы хотели лишь задать направление интерьеру для того, чтобы будущие жильцы сами могли наполнить его любимыми вещами», — рассказывает дизайнер.
По теме: Надежда Комарова: студия 42 кв. метра с винтажными деталями


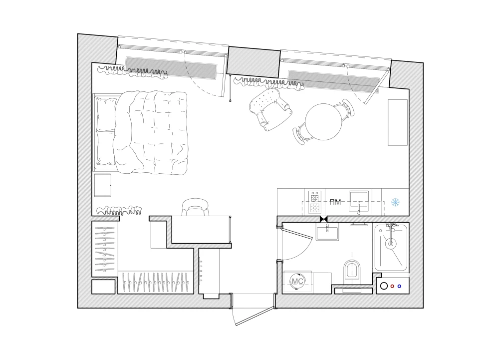
Планировка от застройщика была вполне удобной: студия была разделена на две равные части, что определило расположение функциональных зон. Дизайнер только немного уменьшила гардеробную и перенесла вход в нее в спальню, чтобы освободить место в прихожей. Главное достоинство квартиры — большие окна, которые наполняют пространство светом и стирают границу между интерьером и окружающим ландшафтом. Чтобы усилить этот эффект, стены выкрасили в белый. На пол в основном помещении положили инженерную доску теплого оттенка, а в прихожей и ванной использовали мелкую плитку с шахматным рисунком.



Отправной точкой проекта послужил подвесной светильник, украсивший обеденную зону. «Его гладкое матовое стекло и тонкая кайма винного цвета вдохновили на светлый, легкий интерьер с небольшими контрастными деталями, — говорит Надежда. — Так в монохромной гамме появились цветовые акценты: синие бра и крючок из керамики в ванной, красные крючки в прихожей, яркие настольные лампы, подушки и моя любимая деталь здесь — полосатый подклад у штор, который видно лишь при движении текстильного полотна».


Большая часть мебели в квартире — винтажная. Винтаж изначально был в референсах, что сразу подкупило Надежду, ни один проект которой не обходится без старинных вещиц. «Заказчики разделяют эту мою любовь и с удовольствием включились в процесс охоты на «Авито». Предметы с историей придают интерьеру глубину и индивидуальность, что особенно ценно в условиях минимализма».



