Объединение двух квартир для семьи с тремя детьми: проект Виталины Голубевой
30 октября 2025 г.

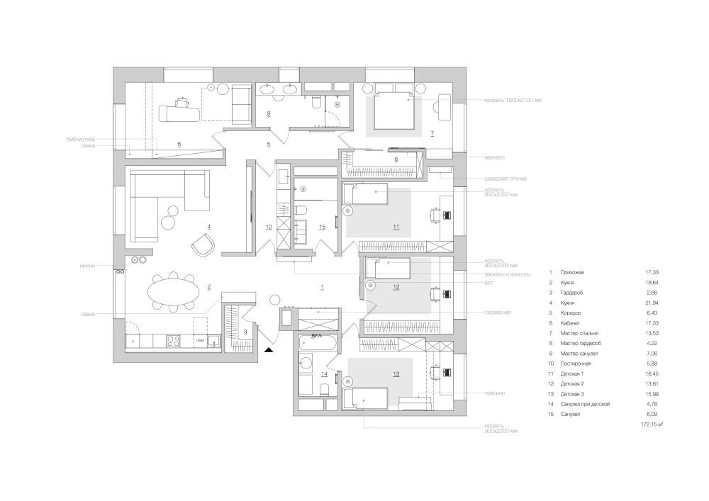
Дизайнер Виталина Голубева, SV bureau, завершила проект объединения двух квартир общей площадью 172 кв. метра в московском ЖК «Серебряный парк», построенном по проекту бюро SPEECH. Пространство обладало большим количеством окон на три стороны, высотой потолков 3,2 метра и свободной планировкой.
По теме: Объединение квартир для многодетной семьи: проект Натальи Чернышовой
Интерьер создавался для пары с тремя детьми — молодой и активной семьи, которая много работает и путешествует. Владельцы хотели, чтобы у каждого в квартире было свое личное пространство, также необходимо было организовать грамотное хранение и максимально скрыть визуальный шум для создания атмосферы комфорта и отдыха.

Квартиру разделили на три зоны. Общая включила прихожую, гардероб, коридор, кухню-гостиную, санузел и постирочную. Мастер-блок представляет собой спальню, гардероб, кабинет и санузел. Детская часть — спальня с собственным санузлом для девочки и две комнаты для мальчиков.




Дизайнер стремилась создать ощущение комфорта и спокойствия с помощью света, цвета, натуральных материалов и использования текстур. На полу применили дубовый паркет, стены выкрасили экологичной краской, в санузлах — глиняная декоративная штукатурка, раковины выполнены из мрамора, а столешница на кухне — из керамики Laminam. Также в спальнях использовали отделку изо льна и натуральной кожи. В детских применили шумоизоляционные панели из прессованного войлока, которые также выполняют антивандальную функцию.



«Природа умиротворяет человека, — рассказывает автор проекта. — В ней нет буйства красок — все спокойно и сбалансированно. В этом интерьере мы использовали только «сложные цвета». Стены исключительно в натуральных оттенках камней и минералов. В общей зоне преобладают землистые тона: коричневые, рыжие, бежевые. В детских учли индивидуальность детей. Девочка — с тонкой душевной организацией, при этом активная в спорте, и для ее интерьера выбрали пастельный благородный розовый цвет и песочные оттенки. Старший мальчик — хоккеист — сдержанный, но внутри много огня. Поэтому использовали яркие вставки цвета охры, при этом спокойный зеленый оттенок на шкафах, напоминающий лазурную воду. Второй мальчик — нежный, добрый, мягкий, и акцент сделан на бирюзовые, небесные цвета».



Мебель подбирали таким образом, чтобы можно было разместиться всей семьей, что, безусловно, способствует объединению — большой глубокий диван, стол овальной формы. В мастер-спальне появилась кожаная изящная кровать, которая растворилась в пространстве. Под нее подобрали и кожаный стол со спокойными скругленными формами.



«Интерьер получился про спокойствие и умиротворение при очень активном ритме и характере каждого члена семьи. Но самая главная гордость для нас — это полное удовлетворение заказчиков квартирой. Когда после заезда все чувствуют себя комфортно, с удовольствием показывают фотографии интерьера друзьям, делают пять этапов новоселья и проводят каждому экскурсию — это настоящая гордость».














