
Местная архитектурная студия Made спроектировала изогнутую пристройку к дому на западном побережье Латвии. Здание, получившее название The Pāvilosta House в честь города, в котором оно расположено, занимает площадь 300 кв. метров и выполнено для владельца дома напротив, которому требовались дополнительные гостевые спальни и более просторное помещение для встреч.
По теме: Белоснежный дом на вершине холма в Онтарио: проект Akb Architects

«Павилоста, прибрежный латвийский город, — это уникальное место, где дикое море встречается с исторической застройкой города и его давними традициями», — говорит партнер Made Линда Круминя (Linda Krūmiņa). Заказчик хотел, чтобы постройка напоминала о прибрежном расположении города, поэтому архитекторы использовали типичный для этих мест образ дома-амбара и придали ему плавные динамичные формы, которые отсылают к песчаным дюнам, созданным морским ветром.

«Мы были твердо убеждены, что любая новая архитектура должна соответствовать масштабу существующих зданий, и в то же время стремились отразить видение заказчика, который хотел передать ощущение моря, ветра, дюн и волн, — рассказывает Круминя. — Кажется, что ветер и вода сформировали геометрию дома так же, как они вечно формируют и преображают дюны Павилосты».

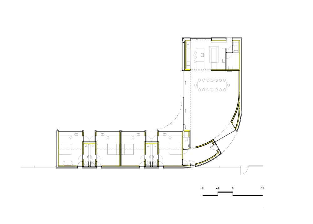
Узкий остроконечный объем на западе, огибая угол участка, плавно раскрывается в более широкий изогнутый односкатный объем на севере. Структурную основу пристройки составляет каркас из клееного бруса, заполненный панелями из перекрестно-клееной древесины (CLT). И каркас, и панели оставили открытыми — это решение подчеркивает внутреннюю отделку и динамичную, меняющуюся геометрию здания. В более узкой части постройки расположены четыре гостевые спальни, а изогнутую центральную часть занимают большая гостиная, столовая и кухня. Раздвижные стеклянные двери во всю высоту ведут в сад, который отделяет пристройку от основного дома. Внутренняя отделка из необработанного дерева создает контраст с черными поверхностями: обугленными деревянными деталями на кухне и в спальнях и темным каменным полом.

Снаружи дом обшит узкими деревянными досками, а изогнутая крыша полностью покрыта натуральной сланцевой черепицей. Она была выбрана за ее особую способность отражать и преломлять солнечный свет, когда тот скользит по извилистой поверхности кровли. «Мы провели бесчисленное количество итераций моделирования, чтобы добиться нужной кривизны, которая соответствовала бы месту, контексту и функционалу дома, — говорит Круминя. — Этот изгиб постоянно меняется, если смотреть на него под разными углами и при разном освещении, постоянно напоминая нам о том, насколько эмоционально насыщенной может быть такая изогнутая геометрия».






