
Японский архитектор Казунари Сакамото (Kazunari Sakamoto) превратил третий этаж шанхайского музея «Электростанция искусств» в пространство Espace Gabrielle Chanel — первую в Китае публичную библиотеку, посвященную современному искусству и дизайну. Проект реализован в рамках сотрудничества модного дома Chanel и музея Power Station of Art, расположенного в здании бывшей электростанции Наньши.
По теме: Музей-библиотека Museumbrary на Тайване: крупнейший проект бюро SANAA


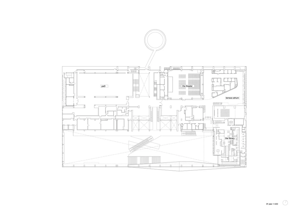
Архитектор создал многоуровневый интерьер-лабиринт, включающий библиотеку, театр и выставочное пространство. Книжные полки расположены вдоль пандуса, деревянные полы и стеллажи разделяют библиотеку на тематические разделы с книгами и аудиовизуальными материалами по искусству, дизайну, архитектуре и культуре. На втором этаже расположена зона, посвященная современному китайскому искусству.

Выставочное пространство для дизайнерских объектов и зона отдыха с видом на реку Хуанпу остались открытыми благодаря высокому потолку третьего этажа. Архитектор также спроектировал театр на триста мест, предназначенный для проведения различных мероприятий, включая показы видеоарта, звуковые эксперименты, театральные представления и пресс-конференции. «Это пространство для всех творцов, мыслителей и мечтателей, которые, как и Габриэль Шанель, стремятся стать частью того, что произойдет в будущем», — комментирует команда проекта.




