
Проект Barrington 1503 от калифорнийской студии LOHA — это четырехуровневый жилой комплекс площадью 2248 кв. метров в Западном Лос-Анджелесе. В этом районе расположены Калифорнийский университет, кампус Лос-Анджелеса и колледж Санта-Моника, поэтому возникла необходимость предложить студентам и людям, приезжающим из других штатов, доступное жилье. По словам архитекторов, «проект разработан для оптимального решения сложностей коммунальной жизни».
По теме: Красный коливинг в Индонезии по проекту Ismail Solehudin Architecture

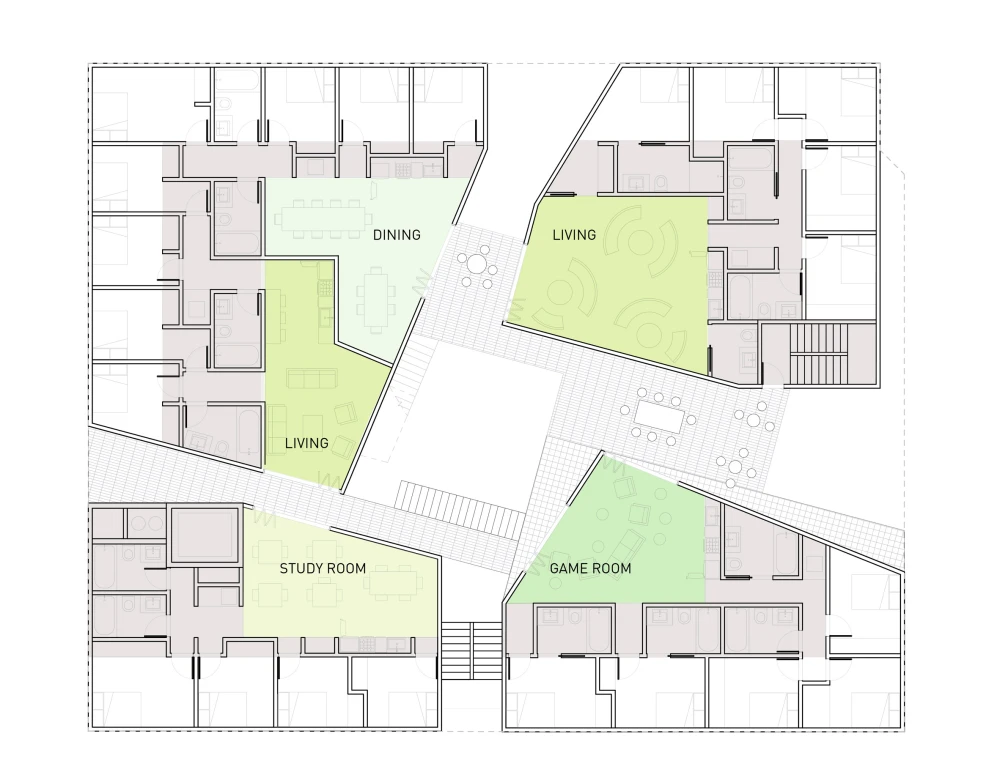
Проект предлагает «важную и жизнеспособную альтернативу» традиционным моделям жилья в Лос-Анджелесе и обеспечивает необходимую плотность проживания: благодаря растущему спросу на доступное жилье в городе модель коливинга кажется все более привлекательной. Каждый блок коливинга включает кухню, гостиную и четыре или пять спален. Размеры спален варьируются от 9,6 до 12 кв. метров. Все комнаты меблированы. В каждом блоке от двух до четырех ванных комнат.


Фасады здания облицованы алюминиевыми панелями угольного цвета и оштукатурены. Barrington 1503 сочетает социальные и частные пространства с многослойными переходами между этими зонами. Снаружи здание напоминает куб, который сформирован четырьмя объемами разных форм и размеров, расположенных вокруг центрального двора. Комплекс должен стать моделью для будущих проектов коливингов, которые в равной степени поддерживает как взаимодействие, так и необходимую приватность.





